Trilocale in vendita

Torino, Via Adamello - Pozzo Strada
€ 159.000
4 locali 4 locali
90 Mq 90 Mq
1 bagno 1 bagno

Trilocale in vendita

Torino, Via Adamello - Pozzo Strada

Descrizione annuncio

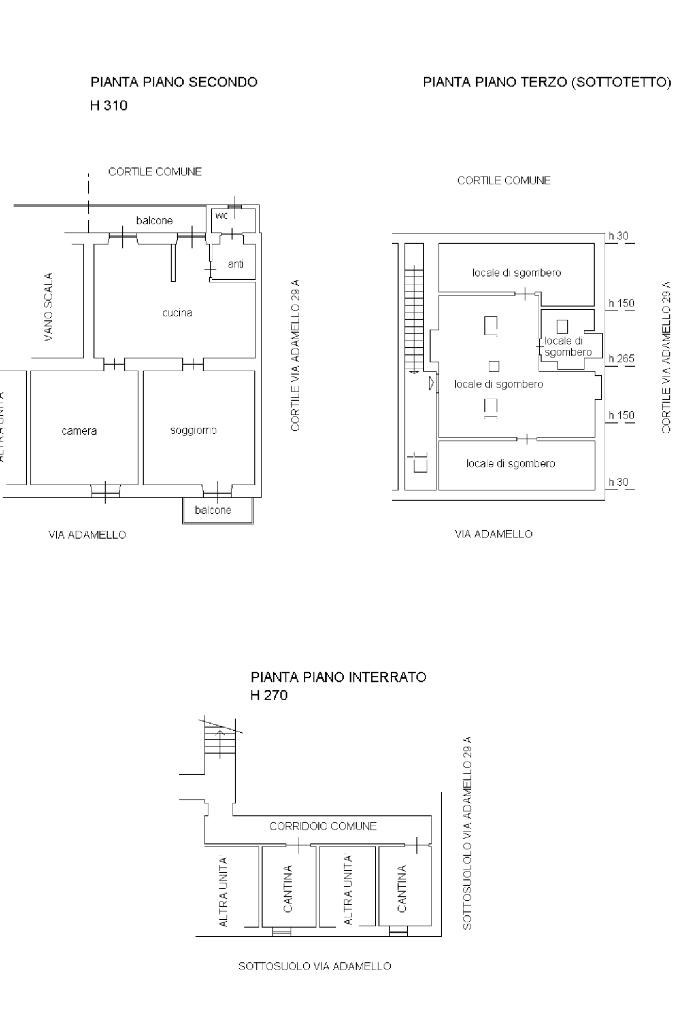
A soli 5 minuti a piedi dalla fermata Marche della metropolitana, proponiamo un appartamento in vendita che unisce comfort e praticità. Situato al secondo piano di un edificio degli anni '60, l'immobile offre una generosa metratura interna di 70 mq, ideale per chi cerca spazi ben distribuiti. Composto da tre locali, l'appartamento si distingue per la sua funzionalità e per il riscaldamento autonomo, che garantisce una gestione efficiente dei consumi. Un ulteriore vantaggio è rappresentato dal sottotetto non abitabile, accessibile tramite una scala esterna, che offre spazio aggiuntivo per riporre oggetti. Attualmente locato fino a febbraio 2028, l'immobile rappresenta un'opportunità interessante per chi desidera investire in una zona ben servita e in continua crescita. La posizione al secondo piano, pur senza ascensore, assicura tranquillità e privacy, rendendo questa proposta particolarmente appetibile.

Mostra tutto

Nelle vicinanze

Trasporto pubblico Trasporto pubblico
Marche
Marche
400 m
Massaua
Massaua
540 m
stazione di Grugliasco
stazione di Grugliasco
1,3 Km
De Sanctis
De Sanctis
860 m
Brissogne Capolinea
Brissogne Capolinea
990 m
Ricariche auto elettriche Ricariche auto elettriche
Bluetorino Fidia
600 m
Collegno Pastrengo | ENELX
2,9 Km
COLLEGNO PASTRENGO 34/b | ENELX
2,9 Km
Scuole Scuole
Scuola Elementare di Stato Rosa Agazzi
460 m
Scuole
470 m
Politecnico di Torino – Sede Alenia
580 m
Istituto di istruzione superiore "Carlo Levi"
710 m
Scuola elementare Martin Luther King
820 m
Farmacia Farmacia
Gancia Dimitri
170 m
Farmacia Parini
260 m
Comunale 5 - Afc
480 m
Farmacia
490 m
Massaua
540 m
Ospedali Ospedali
Ospedale Martini
1,1 Km
Ospedale Martini - Emergency
1,1 Km
Ospedali
1,1 Km
Clinica della Memoria "Giovanni Paolo II"
1,3 Km
LARC
2,9 Km
Supermercati Supermercati
Lidl
300 m
CRAI Panda Market
320 m
Supermercati
500 m
Unes
630 m
EuroSpin
660 m
Negozi Negozi
Pastificio Federico
60 m
Dalla Terra al Cielo
150 m
Negozi
350 m
Delper
440 m
Pesciolino Rosso
500 m
Bar Bar
Fratelli Martino
490 m
Marinella
500 m
Bar White Coffee
580 m
Bar
670 m
Big Bang Karaoke
760 m
Ristoranti Ristoranti
Povero felice
450 m
Gustosità
530 m
Ristoranti
570 m
The Eagle House
610 m
Foglia d'Acero
860 m
Mostra tutto

Caratteristiche

Rif.:
61157154
Piano:
2 di 3 (Piano basso)
Balconi:
2
Camere da letto:
2
Arredamento:
Assente
Condizionamento:
Assente
Mostra tutto
Prezzo Prezzo
€ 159.000
Rata mutuo Rata mutuo
€ 750 / mese
Spese annue Spese annue
€ 1.200
Proponi il tuo prezzoProponi il tuo prezzo

Classe Energetica

G
G
G
G
G
G
G
G
G
EP globale non rinnovabile:
100.00 kW h/m² anno
EP globale rinnovabile:
100.00 kW h/m² anno
Anno di costruzione:
1960
Riscaldamento:
Autonomo
Tipo impianto:
A radiatori
Tipo alimentazione:
Metano

Ti interessa visionare l'immobile?

Fissa un appuntamento  Fissa un appuntamento

Richiedi informazioni

Clicca su Leggi per aprire l'informativa
* Questi campi sono obbligatori

Calcola il tuo mutuo

Semplice e senza impegno
Anticipo

( % )
Mutuo

( % )

pochi semplici passi

inserisci i tuoi dati
Questionario completato
Grazie per aver richiesto un appuntamento senza impegno con un nostro Consulente del Credito e Assicurativo.

Hai inserito correttamente tutti i dati necessari e a breve riceverai una e-mail con un link da convalidare per inviare i tuoi dati.
Affiliato
Immobiliare Tambozza Sas
Corso Francia, 303 10141 Torino (TO)

Il nostro staff


  • Marco Civelli
    Affiliato

  • Vincenzo Pio D'Eredità
    Affiliato
Corso Francia, 303 10141 Torino (TO)
Zona: Pozzo Strada-Massaua
Mostra su mappa
Orari: Lunedì: 8:45-12:30 14:30-20:00 Martedì: 8:45-12:30 14:30-20:00 Mercoledì: 8:45-12:30 14:30-20:00 Giovedì: 8:45-12:30 14:30-20:00 Venerdì: 8:45-12:30 14:30-20:00 Sabato: 8:45-12:30 14:30-19:00
Affiliato
Immobiliare Tambozza Sas
Corso Francia, 303 10141 Torino (TO)

2026 Tecnocasa Franchising S.p.A. - P. IVA 08365160152 - Via Monte Bianco 60/A 20089 Rozzano (MI). Ogni agenzia ha un proprio titolare ed è autonoma. Privacy policy | Policy utilizzo | Cookie policy